Explore fuse box and relay locations for the 2013-2016 Ford Escape with detailed diagrams. Ensure proper maintenance of electrical systems for reliable performance.
The Ford Escape (2013-2016) marks a shift towards a sleeker, more aerodynamic design with modern styling. This compact SUV features a five-door body style with seating for five passengers and a versatile cargo area, making it a popular choice for families and individuals alike. The updated design offers improved fuel efficiency and advanced technology options, including enhanced safety systems and infotainment features. Available in front-wheel drive and all-wheel drive configurations, the Escape is versatile enough for both city driving and light off-road adventures.
The electrical system in the 2013-2016 Ford Escape relies on an organized fuse box and relay system. The main fuse box, also referred to as the power distribution box, is located in the engine compartment near the battery and protects critical components such as the ignition, cooling fans, and headlights. A secondary fuse box is located in the interior, under the dashboard on the passenger side, managing interior electronics like power windows, infotainment, and cabin lights. Relays located near these fuse boxes handle high-current systems such as the fuel pump and air conditioning. Regular maintenance of the fuse box and relays ensures seamless operation.
MUST READ: DYI โ How to Check Car Fuses?
(2013-2016) Ford Escape fuse box and relay with Diagram
WARNING
- Never replace a fuse with one that has a higher amperage rating.
- A fuse with a too-high amperage could damage the electrical part and cause a fire.
- On no account should fuses be repaired (e.g. patched up with tin foil or wire) as this may cause serious damage elsewhere in the electrical circuit or cause a fire.
- If a fuse blows repeatedly, do not keep replacing it. Instead, have the cause for the repeated short circuit or overload tracked and fixed.
- Terminal and harness assignments for individual connectors will vary depending on vehicle equipment level, model, and market.
Ford Escape 2013-2016 fuse assignment
Ford Escape Year of production: 2013, 2014, 2015, 2016

Passenger Compartment Fuse Panel:
The fuse panel is located on the right side below the glove box.

Power Distribution Box:
The power distribution box is located in the engine compartment. It has high-current fuses that protect your vehicleโs main electrical systems from overloads. Lift the release lever at the rear of the cover to remove it.
Pre-Fuse Box:
Your vehicle is equipped with a pre-fuse box located in the engine compartment attached to the positive battery post. This box contains several high current fuses. If replacement of these high current fuses is required, see your authorized dealer.

Luggage Compartment Fuse Panel:
The fuse panel is located in the luggage compartment behind the passengerโs side wheel well. Remove the fuse panel cover to gain access to the fuses.
Fuse Box Diagrams
2013
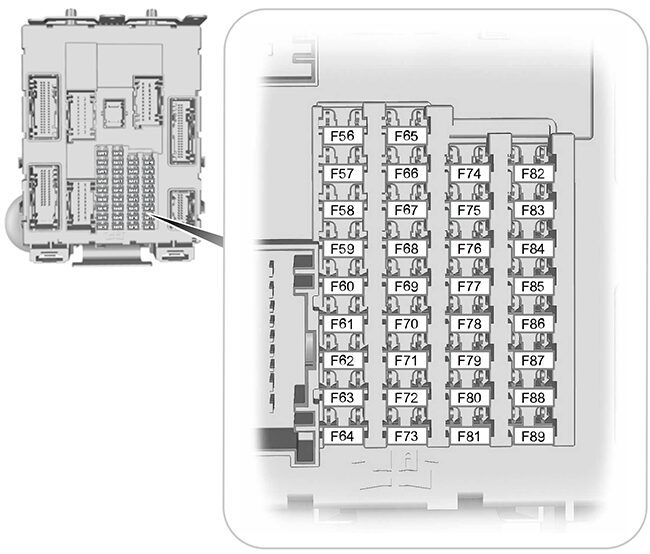
Passenger Compartment Fuse Panel

List of fuses in the passenger compartment fuse panel (2013)
| โ | A | Protected components |
|---|---|---|
| 56 | 20A | Fuel pump supply, Air mass meter |
| 57 | โ | Not used |
| 58 | โ | Not used |
| 59 | 5A | Passive anti-theft transceiver |
| 60 | 10A | Interior light, Driver door switch pack, Glove box illumination, Overhead console switch bank |
| 61 | 20A | Cigar lighter, Power point |
| 62 | 5A | Rain sensor module, Auto-dimming mirror |
| 63 | โ | Not used |
| 64 | โ | Not used |
| 65 | 10A | Liftgate release |
| 66 | 20A | Driver door unlock supply, Double lock |
| 67 | 7.5A | SYNC, Multifunction display, Global posi-tioning system module |
| 68 | โ | Not used |
| 69 | 5A | Instrument cluster |
| 70 | 20A | Central lock and unlock supply |
| 71 | 10A | Heating control head (manual air condi-tioner), Dual electronic automatic temperature control |
| 72 | 7.5A | Steering wheel module |
| 73 | 5A | Data link connector |
| 74 | 15A | High beam headlamp supply |
| 75 | 15A | Fog lamp supply |
| 76 | 10A | Reversing lamp supply |
| 77 | 20A | Windshield washer supply |
| 78 | 5A | Ignition switch, Start button |
| 79 | 15A | Radio, Navigation DVD player, Touch screen, Hazard light switch, Door lock switch |
| 80 | 20A | Moonroof supply |
| 81 | 5A | Radio frequency receiver |
| 82 | 20A | Windshield washer relay |
| 83 | 20A | Central locking |
| 84 | 20A | Drive door unlock supply, Double lock |
| 85 | 7.5A | Electronic 15 feed |
| 86 | 10A | Air bag module, Occupant classification system, Passenger air bag deactivation indicator |
| 87 | โ | Not used |
| 88 | โ | Not used |
| 89 | โ | Not used |
Power Distribution Box

List of fuses in the power distribution box (2013)
| โ | A | Protected components |
|---|---|---|
| F7 | 40A** | Anti-lock brake system and electronic stability program pump |
| F8 | 30A** | Electronic stability program valve |
| F9 | โ | Not used |
| F10 | 40A** | Fleater blower motor |
| F11 | โ | Not used |
| F12 | 30A** | Powertrain control module relay fuse |
| F13 | 30A** | Starter relay |
| F14 | 25A** | Rear power window (without door control unit) |
| F15 | 20A** | Front cigar lighter or power outlet |
| F16 | 25A** | Front power window (without door control unit) |
| F17 | 20A** | Rear power outlet |
| F18 | 20A** | Center power outlet |
| F19 | 5A* | Anti-lock brake system and electronic stability program 15 feed |
| F20 | 15A* | Horn |
| F21 | 5A* | Stop light switch |
| F22 | 15A* | Battery monitor system |
| F23 | 5A* | Relay coils |
| F24 | 5A* | Light switch module |
| F25 | 10A* | Power exterior mirror (without door control unit) |
| F26 | 5A* | Keep-alive power |
| F27 | 15A* | Air conditioner clutch |
| F28 | 10A* | Vehicle power โ fuel injector |
| F29 | 2 5A* | Rear window defroster |
| F30 | โ | Not used |
| F31 | 5A* | Power transfer unit oil cooling fan (Middle East specification) |
| F32 | 15A* | Vehicle power |
| F33 | 10A* | Vehicle power 2 |
| F34 | 10A* | Vehicle power 3 |
| F35 | 15A* | Vehicle power 4 |
| F36 | 5A* | Active grill shutters |
| F37 | 10A* | Occupant classification sensor, Passenger airbag deactivation indicator feed |
| F38 | 5A* | Engine control module and transmission control module ignition feed |
| F39 | 5A* | Daytime running lamps and headlamp control module ignition feed |
| F40 | 5A* | Electronic power assist steering 15 feed |
| F41 | 20A* | Body control module 15 feed |
| F42 | 15A* | Rear wiper |
| F43 | 15A* | Headlamp control module supply |
| F44 | 15A* | Front fog daytime running lamps |
| F45 | โ | Not used |
| F46 | 50A** | Smart wiper motor modules |
| F47 | โ | Not used |
| F48 | 5A* | Keypad |
| R1 | โ | Not used |
| R2 | Micro relay | Horn |
| R3 | โ | Power transfer unit oil cooling fan (Middle East specification) |
| R4 | โ | Front fog daytime running lamps |
| R5 | โ | Not used |
| R6 | โ | Not used |
| R7 | โ | Not used |
| R8 | Mini relay | Delayed accessory relay |
| R9 | โ | Not used |
| R10 | Mini relay | Starter relay |
| R11 | Micro relay | Air conditioner clutch |
| R12 | Power relay | Cooling fan |
| R13 | Mini relay | Heater blower |
| R14 | Mini relay | Engine control relay |
| R15 | Power relay | Heated rear window |
| R16 | Power relay | Ignition 15 |
| *Mini fuses **Cartridge fuses | ||
Luggage Compartment Fuse Panel

List of fuses in the luggage compartment fuse panel (2013)
| โ | A | Protected components |
|---|---|---|
| F1 | 5A | Flands-free liftgate entry module |
| F2 | 10A | Keyless vehicle module |
| F3 | 5A | Keyless vehicle door handles |
| F4 | 25A | Door control unit front left |
| F5 | 25A | Door control unit front right |
| F6 | 25A | Door control unit rear left |
| F7 | 25A | Door control unit rear right |
| F8 | โ | Not used |
| F9 | 25A | Driver seat motor |
| F10 | 5A | Driver seat memory module logic feed |
| F11 | 5A | Rear ignition coil feed |
| F12 | โ | Not used |
| F13 | โ | Not used |
| F14 | โ | Not used |
| F15 | โ | Not used |
| F16 | โ | Not used |
| F17 | โ | Not used |
| F18 | โ | Not used |
| F19 | โ | Not used |
| F20 | โ | Not used |
| F21 | โ | Not used |
| F22 | โ | Not used |
| F23 | 25A | Audio amplifier |
| F24 | 30A | DC/AC power converter |
| F25 | 25A | Power liftgate |
| F26 | 40A | Accessories / Trailer tow module 30 feed 1 |
| F27 | โ | Not used |
| F28 | โ | Not used |
| F29 | 5A | Blind spot detection system, Rear view camera with park assist |
| F30 | 5A | Parking aid module |
| F31 | โ | Not used |
| F32 | 5A | DC/AC power converter |
| F33 | โ | Not used |
| F34 | 20A | Driver seat heater |
| F35 | 20A | Passenger seat heater |
| F36 | โ | Not used |
| F37 | 5A | Moonroof |
| F38 | โ | Not used |
| F39 | โ | Not used |
| F40 | โ | Not used |
| F41 | โ | Not used |
| F42 | โ | Not used |
| F43 | โ | Not used |
| F44 | โ | Not used |
| F45 | โ | Not used |
| F46 | โ | Not used |
| R1 | Power relay | Rear 15 relay |
| R2 | โ | Not used |
| R3 | โ | Not used |
| R4 | โ | Not used |
| R5 | โ | Not used |
| R6 | โ | Not used |
2014
Passenger Compartment Fuse Panel

List of fuses in the passenger compartment fuse panel (2014)
| โ | A | Protected components |
|---|---|---|
| F56 | 20A | Fuel pump supply, Air mass meter |
| F57 | โ | Not used |
| F58 | 5A | Not used (spare) |
| F59 | 5A | Passive anti-theft transceiver |
| F60 | 10A | Interior light, Driver door switch pack, Glove box illumination, Overhead console switch bank |
| F61 | 20A | Cigar lighter, Power point |
| F62 | 5A | Rain sensor module, Auto-dimming mirror |
| F63 | 10A | Not used (spare) |
| F64 | โ | Not used |
| F65 | 10A | Liftgate release |
| F66 | 20A | Driver door unlock supply |
| F67 | 7.5A | SYNC, Multifunction display, Global posi-tioning system module |
| F68 | โ | Not used |
| F69 | 5A | Instrument cluster |
| F70 | 20A | Central lock and unlock supply |
| F71 | 10A | Heating control head (manual air condi-tioner), Dual electronic automatic temperature control |
| F72 | 7.5A | Steering wheel module |
| F73 | 7.5A | Data link connector |
| F74 | 15A | High beam headlamp supply |
| F75 | 15A | Fog lamp supply |
| F76 | 10A | Reversing lamp supply |
| F77 | 20A | Washer pump |
| F78 | 5A | Ignition switch, Start button |
| F79 | 15A | Radio, Navigation DVD player, Touch screen, Hazard light switch, Door lock switch |
| F80 | 20A | Moonroof supply |
| F81 | 5A | Radio frequency receiver |
| F82 | 20A | Washer pump ground |
| F83 | 20A | Central locking ground |
| F84 | 20A | Drive door unlock ground |
| F85 | 7.5A | Electronic 15 feed |
| F86 | 10A | Air bag module, Occupant classification system, Passenger air bag deactivation indicator |
| F87 | 7.5A | Not used (spare) |
| F88 | 25A | Supply for F67, F69, F71 and F79 |
| F89 | โ | Not used |
Power Distribution Box

List of fuses in the power distribution box (2014)
| โ | A | Protected components |
|---|---|---|
| F7 | 40A** | Anti-lock brake system and electronic stability program pump |
| F8 | 30A** | Electronic stability program valve |
| F9 | โ | Not used |
| F10 | 40A** | Heater blower motor |
| F11 | 30A** | Body control module feed |
| F12 | 30A** | Powertrain control module relay fuse |
| F13 | 30A** | Starter relay |
| F14 | 25A** | Rear power window (without door control unit) |
| F15 | 20A** | Front cigar lighter or power outlet |
| F16 | 25A** | Front power window (without door control unit) |
| F17 | 20A** | Rear power outlet |
| F18 | 20A** | Center power outlet |
| F19 | 5A* | Anti-lock brake system and electronic stability program 15 feed |
| F20 | 15A* | Horn |
| F21 | 5A* | Stop light switch |
| F22 | 15A* | Battery monitor system |
| F23 | 5A* | Relay coils |
| F24 | 5A* | Light switch module |
| F25 | 10A* | Power exterior mirror (without door control unit) |
| F26 | 5A* | Keep-alive power |
| F27 | 15A* | Air conditioner clutch |
| F28 | 10A* | Vehicle power โ fuel injector (2.5L engine) |
| F29 | 25A* | Rear window defroster |
| F30 | โ | Not used |
| F31 | โ | Not used |
| F32 | 15A* | Vehicle power |
| F33 | 10A* | Vehicle power 2 |
| F34 | 10A* | Vehicle power 3 |
| F35 | 15A* | Vehicle power 4 |
| F36 | 5A* | Active grill shutters |
| F37 | 10A* | Occupant classification sensor, Passenger airbag deactivation indicator feed |
| F38 | 5A* | Engine control module and transmission control module ignition feed |
| F39 | 5A* | Daytime running lamps and headlamp control module ignition feed |
| F40 | 5A* | Electronic power assist steering 15 feed |
| F41 | 20A* | Body control module 15 feed |
| F42 | 15A* | Rear wiper |
| F43 | 15A* | Headlamp control module supply |
| F44 | 15A* | Front fog daytime running lamps |
| F45 | โ | Not used |
| F46 | 40A** | Smart wiper motor modules |
| F47 | โ | Not used |
| F48 | 5A* | Keypad |
| R1 | โ | Not used |
| R2 | Micro relay | Horn |
| R3 | โ | Not used |
| R4 | Micro relay | Front fog daytime running lamps |
| R5 | โ | Not used |
| R6 | โ | Not used |
| R7 | โ | Not used |
| R8 | Mini relay | Delayed accessory relay |
| R9 | โ | Not used |
| R10 | Mini relay | Starter relay |
| R11 | Micro relay | Air conditioner clutch |
| R12 | Power relay | Cooling fan |
| R13 | Mini relay | Heater blower |
| R14 | Mini relay | Engine control relay |
| R15 | Power relay | Heated rear window |
| R16 | Power relay | Ignition 15 |
| *Mini fuses **Cartridge fuses | ||
Luggage Compartment Fuse Panel

List of fuses in the luggage compartment fuse panel (2014)
| โ | A | Protected components |
|---|---|---|
| F1 | 5A | Hands-free liftgate entry module |
| F2 | 10A | Keyless vehicle module |
| F3 | 5A | Keyless vehicle door handles |
| F4 | 25A | Door control unit front left |
| F5 | 25A | Door control unit front right |
| F6 | 25A | Door control unit rear left |
| F7 | 25A | Door control unit rear right |
| F8 | โ | Not used |
| F9 | 25A | Driver seat motor |
| F10 | 5A | Driver seat memory module logic feed |
| F11 | 5A | Rear ignition coil feed |
| F12 | โ | Not used |
| F13 | โ | Not used |
| F14 | โ | Not used |
| F15 | โ | Not used |
| F16 | โ | Not used |
| F17 | โ | Not used |
| F18 | โ | Not used |
| F19 | โ | Not used |
| F20 | โ | Not used |
| F21 | โ | Not used |
| F22 | โ | Not used |
| F23 | 25A | Audio amplifier |
| F24 | 30A | DC/AC power converter |
| F25 | 25A | Power liftgate |
| F26 | 40A | Accessories, Trailer tow module 30 feed 1 |
| F27 | โ | Not used |
| F28 | โ | Not used |
| F29 | 5A | Blind spot detection system, Rear view camera with park assist |
| F30 | 5A | Parking aid module |
| F31 | โ | Not used |
| F32 | 5A | DC/AC power converter |
| F33 | โ | Not used |
| F34 | 20A | Driver seat heater |
| F35 | 20A | Passenger seat heater |
| F36 | โ | Not used |
| F37 | โ | Not used |
| F38 | โ | Not used |
| F39 | โ | Not used |
| F40 | โ | Not used |
| F41 | โ | Not used |
| F42 | โ | Not used |
| F43 | โ | Not used |
| F44 | โ | Not used |
| F45 | โ | Not used |
| F46 | โ | Not used |
| R1 | Power relay | Rear 15 relay |
| R2 | โ | Not used |
| R3 | โ | Not used |
| R4 | โ | Not used |
| R5 | โ | Not used |
| R6 | โ | Not used |
2015
Passenger Compartment Fuse Panel

List of fuses in the passenger compartment fuse panel (2015)
| โ | A | Protected components |
|---|---|---|
| F56 | 20A | Fuel pump supply, Air mass meter. |
| F57 | โ | Not used. |
| F58 | 5A | Not used (spare). |
| F59 | 5A | Passive anti-theft transceiver. |
| F60 | 10A | Interior light. Driver door switch pack. Glove box light. Overhead console switch bank. |
| F61 | 20A | Cigar lighter. Power point. |
| F62 | 5A | Rain sensor module. Auto-dimming mirror. |
| F63 | 10A | Not used (spare). |
| F64 | โ | Not used. |
| F65 | 10A | Liftgate release. |
| F66 | 20A | Driver door unlock. |
| F67 | 7.5A | SYNC. Multifunction display. Global positioning system module. |
| F68 | โ | Not used. |
| F69 | 5A | Instrument cluster. |
| F70 | 20A | Central lock and unlock supply. |
| F71 | 7.5A | Fleating control head (manual air condi-tioner). Dual electronic automatic temperature control. |
| F72 | 7.5A | Steering wheel module. |
| F73 | 7.5A | Data link connector. |
| F74 | 15A | High beam headlamp supply. |
| F75 | 15A | Fog lamp. |
| F76 | 10A | Reversing lamp. |
| F77 | 20A | Washer pump. |
| F78 | 5A | Ignition switch. Start button. |
| F79 | 15A | Radio. Navigation DVD player. Touch screen. Hazard light switch. Door lock switch. |
| F80 | 20A | Moonroof supply. |
| F81 | 5A | Radio frequency receiver. |
| F82 | 20A | Washer pump. |
| F83 | 20A | Central locking. |
| F84 | 20A | Drive door unlock. |
| F85 | 7.5A | Electronic 15 feed. |
| F86 | 10A | Air bag module. Occupant classification system. Passenger air bag deactivation indicator. |
| F87 | 15A | Not used (spare). |
| F88 | 25A | Supply for F57, F69, F71 and F79. |
| F89 | โ | Not used. |
Power Distribution Box

List of fuses in the power distribution box (2015)
| โ | A | Protected components |
|---|---|---|
| F7 | 50A** | Anti-lock brake system and electronic stability program pump. |
| F8 | 30A** | Electronic stability program valve. |
| F9 | โ | Not used. |
| F10 | 40A** | Heater blower motor. |
| F11 | 30A** | Body control module feed. |
| F12 | 30A** | Powertrain control module relay. |
| F13 | 30A** | Starter relay. |
| F14 | 25A** | Rear power window (without door control unit). |
| F15 | 20A** | Front cigar lighter or power outlet. |
| F16 | 25A** | Front power window (without door control unit). |
| F17 | 20A** | Rear power outlet. |
| F18 | 20A** | Center power outlet. |
| F19 | 5A* | Anti-lock brake system and electronic stability program 15 feed. |
| F20 | 15A* | Horn. |
| F21 | 5A* | Stop light switch. |
| F22 | 15A* | Battery monitor system. |
| F23 | 5A* | Relay coils. |
| F24 | 5A* | Light switch module. |
| F25 | 10A* | Power exterior mirror (without door control unit). |
| F26 | 5A* | Keep-alive power |
| F27 | 15A* | Air conditioner clutch. |
| F28 | 10A* | Vehicle power โ fuel injector (2.5L engine). |
| F29 | 25A* | Rear window defroster. |
| F30 | โ | Not used. |
| F31 | โ | Not used. |
| F32 | 15A* | Vehicle power. |
| F33 | 10A* | Vehicle power 2. |
| F34 | 10A* | Vehicle power 3. |
| F35 | 15A* | Vehicle power 4. |
| F36 | 5A* | Active grill shutters. |
| F37 | 10A* | Occupant classification sensor. Passenger airbag deactivation indicator. |
| F38 | 5A* | Engine control module and transmission control module ignition feed. |
| F39 | 5A* | Daytime running lamps and headlamp control module ignition feed. |
| F40 | 5A* | Electronic power assist steering 15 feed. |
| F41 | 20A* | Body control module 15 feed. |
| F42 | 15A* | Rear wiper. |
| F43 | 15A* | Headlamp control module supply. |
| F44 | 15A* | Front fog daytime running lamps. |
| F45 | โ | Not used. |
| F46 | 40A** | Smart wiper motor modules. |
| F47 | โ | Not used. |
| F48 | 5A* | Keypad. |
| R1 | โ | Not used. |
| R2 | Micro relay | Horn. |
| R3 | โ | Not used. |
| R4 | Micro relay | Front fog daytime running lamps. |
| R5 | โ | Not used. |
| R6 | โ | Not used. |
| R7 | โ | Not used. |
| R8 | Power relay | Delayed accessory relay. |
| R9 | โ | Not used. |
| R10 | Mini relay | Starter relay. |
| R11 | Micro relay | Air conditioner clutch. |
| R12 | Power relay | Cooling fan. |
| R13 | Mini relay | Heater blower. |
| R14 | Mini relay | Engine control relay. |
| R15 | Power relay | Heated rear window. |
| R16 | Power relay | Ignition 15. |
| *Mini fuses **Cartridge fuses | ||
Luggage Compartment Fuse Panel

List of fuses in the luggage compartment fuse panel (2015)
| โ | A | Protected components |
|---|---|---|
| F1 | 5A | Flands-free liftgate entry module. |
| F2 | 10A | Keyless vehicle module. |
| F3 | 5A | Keyless vehicle door handles. |
| F4 | 25A | Door control unit front left. |
| F5 | 25A | Door control unit front right. |
| F6 | 25A | Door control unit rear left. |
| F7 | 25A | Door control unit rear right. |
| F8 | 25A | Passenger seat. |
| F9 | 25A | Driver seat. |
| F10 | 5A | Driver seat memory module logic feed. |
| F11 | 5A | Rear ignition coil feed. |
| F12 | โ | Not used. |
| F13 | โ | Not used. |
| F14 | โ | Not used. |
| F15 | โ | Not used. |
| F16 | โ | Not used. |
| F17 | โ | Not used. |
| F18 | โ | Not used. |
| F19 | โ | Not used. |
| F20 | โ | Not used. |
| F21 | โ | Not used. |
| F22 | โ | Not used. |
| F23 | 25A | Audio amplifier. |
| F24 | 30A | DC/AC power converter. |
| F25 | 25A | Power liftgate. |
| F26 | 40A | Accessories, Trailer tow module 30 feed 1. |
| F27 | 20A | Luggage compartment power outlet. |
| F28 | โ | Not used. |
| F29 | 5A | Blind spot detection system. Rear view camera with park assist. |
| F30 | 5A | Parking aid module. |
| F31 | โ | Not used. |
| F32 | 5A | DC/AC power converter. |
| F33 | โ | Not used. |
| F34 | 20A | Driver seat heater. |
| F35 | 20A | Passenger seat heater. |
| F36 | โ | Not used. |
| F37 | โ | Not used. |
| F38 | โ | Not used. |
| F39 | โ | Not used. |
| F40 | โ | Not used. |
| F41 | โ | Not used. |
| F42 | โ | Not used. |
| F43 | โ | Not used. |
| F44 | โ | Not used. |
| F45 | โ | Not used. |
| F46 | โ | Not used. |
| R1 | Power relay | Rear 15 relay. |
| R2 | โ | Not used. |
| R3 | โ | Not used. |
| R4 | โ | Not used. |
| R5 | โ | Not used. |
| R6 | โ | Not used. |
2016
Passenger Compartment Fuse Panel

List of fuses in the passenger compartment fuse panel (2016)
| โ | A | Protected components |
|---|---|---|
| F56 | 20A | Fuel pump supply, Air mass meter. |
| F57 | โ | Not used. |
| F58 | 5A | Not used (spare). |
| F59 | 5A | Passive anti-theft transceiver. |
| F60 | 10A | Interior light. Driver door switch pack. Glove box light. Overhead console switch bank. |
| F61 | 20A | Cigar lighter. Power point. |
| F62 | 5A | Rain sensor module. Auto-dimming mirror. |
| F63 | 10A | Not used (spare). |
| F64 | โ | Not used. |
| F65 | 10A | Liftgate release. |
| F66 | 20A | Driver door unlock. |
| F67 | 7.5A | SYNC. Multifunction display. Global positioning system module. |
| F68 | โ | Not used. |
| F69 | 5A | Instrument cluster. |
| F70 | 20A | Central lock and unlock supply. |
| F71 | 7.5A | Heating control head (manual air conditioner). Dual electronic automatic temperature control. |
| F72 | 7.5A | Steering wheel module. |
| F73 | 7.5A | Data link connector. |
| F74 | 15A | High beam headlamp supply. |
| F75 | 15A | Fog lamp. |
| F76 | 10A | Reversing lamp. |
| F77 | 20A | Washer pump. |
| F78 | 5A | Ignition switch. Start button. |
| F79 | 15A | Radio. Navigation DVD player. Touch screen. Hazard light switch. Door lock switch. |
| F80 | 20A | Moonroof supply. |
| F81 | 5A | Radio frequency receiver. |
| F82 | 20A | Washer pump. |
| F83 | 20A | Central locking. |
| F84 | 20A | Drive door unlock. |
| F85 | 7.5A | Electronic 15 feed. |
| F86 | 10A | Air bag module. Occupant classification system. Passenger air bag deactivation indicator. |
| F87 | 15A | Not used (spare). |
| F88 | 25A | Supply for F67, F69, F71 and F79. |
| F89 | โ | Not used. |
Power Distribution Box

List of fuses in the power distribution box (2016)
| โ | A | Protected components |
|---|---|---|
| F7 | 50A** | Anti-lock brake system and electronic stability program pump. |
| F8 | 30A** | Electronic stability program valve. |
| F9 | โ | Not used. |
| F10 | 40A** | Fleater blower motor. |
| F11 | โ | Not used. |
| F12 | 30A** | Powertrain control module relay. |
| F13 | 30A** | Starter relay. |
| F14 | 25A** | Rear power window (without door control unit). |
| F15 | 20A** | Front cigar lighter or power outlet. |
| F16 | 25A** | Front power window (without door control unit). |
| F17 | 20A** | Rear power outlet. |
| F18 | 20A** | Center power outlet. |
| F19 | 5A* | Anti-lock brake system and electronic stability program 15 feed. |
| F20 | 15A* | Horn. |
| F21 | 5A* | Stop light switch. |
| F22 | 15A* | Battery monitor system. |
| F23 | 5A* | Relay coils. |
| F24 | 5A* | Light switch module. |
| F25 | 10A* | Power exterior mirror (without door control unit). |
| F26 | 5A* | Keep-alive power |
| F27 | 15A* | Air conditioner clutch. |
| F28 | 10A* | Vehicle power โ fuel injector (2.5L engine). |
| F29 | 2 5A* | Rear window defroster. |
| F30 | 15A* | Heated mirror (less door control unit). Heated wiper park. |
| F31 | โ | Not used. |
| F32 | 15A* | Vehicle power. |
| F33 | 10A* | Vehicle power 2. |
| F34 | 10A* | Vehicle power 3. |
| F35 | 15A* | Vehicle power 4. |
| F36 | 5A* | Active grill shutters. |
| F37 | 10A* | Occupant classification sensor. Passenger airbag deactivation indicator. |
| F38 | 5A* | Engine control module and transmission control module ignition feed. |
| F39 | 20A* | Heated driver seat. |
| F40 | 5A* | Electronic power assist steering 15 feed. |
| F41 | 20A* | Body control module 15 feed. |
| F42 | 15A* | Rear wiper. |
| F43 | 15A* | Headlamp control module supply. Daytime running light. |
| F44 | 15A* | Front fog daytime running lamps. |
| F45 | 20A* | Heated passenger seat. |
| F46 | 40A** | Smart wiper motor modules. |
| F47 | 5A* | Heated mirror (less door control unit). Heated wiper park relay feed. |
| F48 | 5A* | Keypad. |
| R1 | โ | Not used. |
| R2 | Micro relay | Horn. |
| R3 | Micro relay | Heated mirror relay (less door control unit). Heated wiper park relay. |
| R4 | Micro relay | Front fog daytime running lamps. |
| R5 | โ | Not used. |
| R6 | โ | Not used. |
| R7 | โ | Not used. |
| R8 | Power relay | Delayed accessory relay. |
| R9 | โ | Not used. |
| R10 | Mini relay | Starter relay. |
| R11 | Micro relay | Air conditioner clutch. |
| R12 | Power relay | Cooling fan. |
| R13 | Mini relay | Heater blower. |
| R14 | Mini relay | Engine control relay. |
| R15 | Power relay | Heated rear window. |
| R16 | Power relay | Ignition 15. |
| *Mini fuses **Cartridge fuses | ||
Luggage Compartment Fuse Panel

List of fuses in the luggage compartment fuse panel (2016)
| โ | A | Protected components |
|---|---|---|
| F1 | 5A | Hands-free liftgate entry module. |
| F2 | 10A | Keyless vehicle module. |
| F3 | 5A | Keyless vehicle door handles. |
| F4 | 25A | Door control unit front left. |
| F5 | 25A | Door control unit front right. |
| F6 | 25A | Door control unit rear left. |
| F7 | 25A | Door control unit rear right. |
| F8 | 25A | Passenger seat. |
| F9 | 25A | Driver seat. |
| F10 | 5A | Driver seat memory module logic feed. |
| F11 | 5A | Rear ignition coil feed. |
| F12 | โ | Not used. |
| F13 | โ | Not used. |
| F14 | โ | Not used. |
| F15 | โ | Not used. |
| F16 | โ | Not used. |
| F17 | โ | Not used. |
| F18 | โ | Not used. |
| F19 | โ | Not used. |
| F20 | โ | Not used. |
| F21 | โ | Not used. |
| F22 | โ | Not used. |
| F23 | 25A | Audio amplifier. |
| F24 | 30A | DC/AC power converter. |
| F25 | 25A | Power liftgate. |
| F26 | 40A | Accessories, Trailer tow module 30 feed 1. |
| F27 | 20A | Luggage compartment power outlet. |
| F28 | โ | Not used. |
| F29 | 5A | Blind spot detection system. Rear view camera with park assist. |
| F30 | 5A | Parking aid module. |
| F31 | โ | Not used. |
| F32 | 5A | DC/AC power converter. |
| F33 | โ | Not used. |
| F34 | โ | Not used. |
| F35 | โ | Not used. |
| F36 | โ | Not used. |
| F37 | โ | Not used. |
| F38 | โ | Not used. |
| F39 | โ | Not used. |
| F40 | โ | Not used. |
| F41 | โ | Not used. |
| F42 | โ | Not used. |
| F43 | โ | Not used. |
| F44 | โ | Not used. |
| F45 | โ | Not used. |
| F46 | โ | Not used. |
| R1 | Power relay | Rear 15 relay. |
| R2 | โ | Not used. |
| R3 | โ | Not used. |
| R4 | โ | Not used. |
| R5 | โ | Not used. |
| R6 | โ | Not used. |
Conclusion
The 2013-2016 Ford Escape combines modern styling with reliable performance, supported by a dependable electrical system. Proper care of the fuse box and relays is essential for continued functionality.
